Ferienhaus Nordkap 80

Das Ferienhaus Nordkap 80 von Idealhus ist ein durchdachtes und familienfreundliches Schwedenholzhaus mit einer Gesamtwohnfläche von 80 m², verteilt auf zwei Ebenen. Dieses gemütliche Ferienhaus kombiniert funktionale Raumgestaltung mit einem offenen Wohngefühl – perfekt für Familien, Paare oder Gäste, die Wert auf naturnahes Wohnen und gemeinsames Erleben legen.

Jetzt Anfragen!
  • Offener Wohn- und Essbereich mit Küche
  • Bad
  • Zwei Schlafzimmer im OG
  • Ein Schlafzimmer im EG
  • Wohnfläche EG + OG gesamt 80 m²

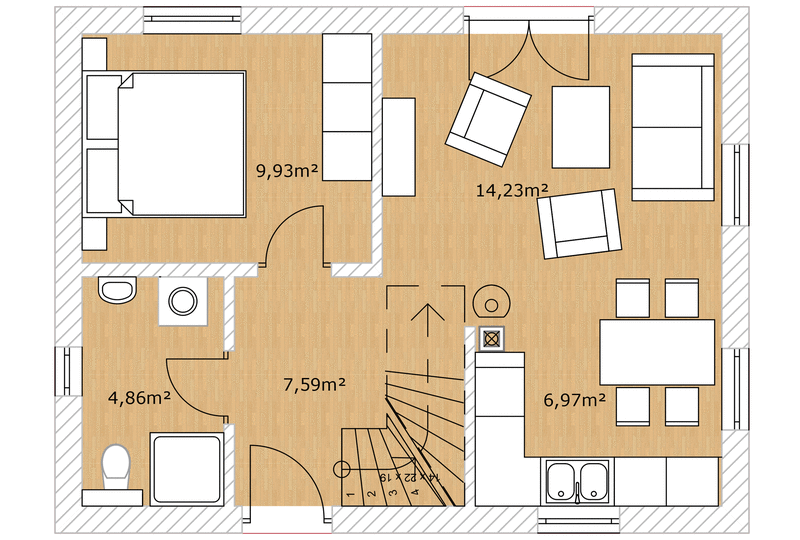
Erdgeschoss

Im Erdgeschoss empfängt Sie ein heller, offener Wohn- und Essbereich, der nahtlos mit der Küche verbunden ist und zum geselligen Zusammensein einlädt. Hier finden Sie ausreichend Platz für gemütliche Stunden mit Familie oder Freunden. Ergänzend bietet das Erdgeschoss ein praktisches Bad sowie ein Schlafzimmer, das angenehm zugänglich und flexibel nutzbar ist.

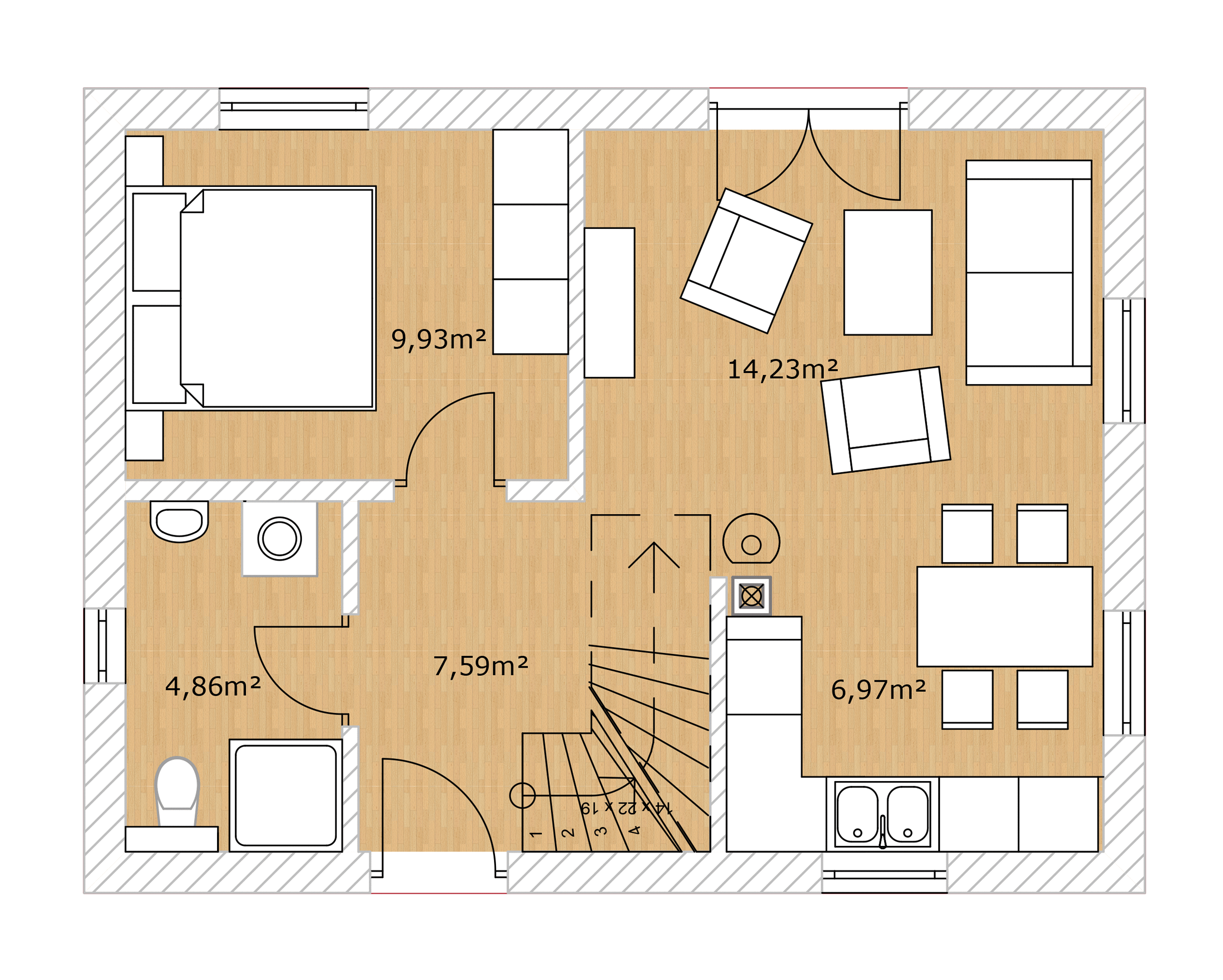
Obergeschoss

Über eine Treppe gelangen Sie in das Obergeschoss, wo zwei weitere Schlafzimmer zusätzliche Rückzugsorte und Schlafmöglichkeiten schaffen. Die Anordnung der Räume sorgt für eine klare Struktur, die sowohl Privatsphäre als auch Gemeinschaft unter einem Dach ermöglicht.

Die geschickte Aufteilung des Hauses macht den Nordkap 80 zu einem idealen Ferienhaus für Familien oder Paare, die einen Ort suchen, an dem sich Alltag und Erholung perfekt verbinden lassen. Ob als gemütliches Urlaubsdomizil, Wochenendhaus oder Rückzugsort im Grünen – dieses wohldimensionierte Holzhaus vereint skandinavische Wohnkultur mit funktionaler Planung.

cookie