Ferienhaus Krone 100

Das Ferienhaus Krone 100 von Idealhus ist ein modernes Schwedenhaus, das skandinavische Wohnqualität mit einem funktionalen Grundriss verbindet. Mit einer Wohnfläche von rund 100 Quadratmetern auf zwei Etagen bietet dieses Holzhaus ausreichend Platz für Familien, Paare oder Gäste und eignet sich hervorragend als Ferienhaus, Zweitwohnsitz oder auch als dauerhaftes Wohnhaus. Die klare Architektur, kombiniert mit natürlichen Materialien, schafft eine zeitlose Optik und ein besonders angenehmes Wohngefühl.

Jetzt Anfragen!
  • Offener Wohn- und Essbereich
  • Küche
  • Gäste-WC
  • HWR
  • Drei Schlafzimmer
  • Bad
  • Wohnfläche insgesamt 100 m²

Erdgeschoss

Im Erdgeschoss befindet sich der offen gestaltete Wohn-, Ess- und Kochbereich, der das Herzstück des Hauses bildet. Durch große Fensterflächen wirkt der Raum hell und freundlich und bietet einen fließenden Übergang zwischen Wohnen, Kochen und Essen. Der Wohnbereich lädt zum Entspannen ein, während der Essbereich genügend Platz für gemeinsame Mahlzeiten bietet. Die funktional geplante Küche fügt sich harmonisch in den Raum ein und ist optimal auf den Alltag sowie auf Urlaubsaufenthalte ausgelegt. Ergänzt wird das Erdgeschoss durch ein Gäste-WC sowie einen praktischen Hauswirtschaftsraum, der zusätzlichen Stauraum und Platz für Haustechnik bietet.

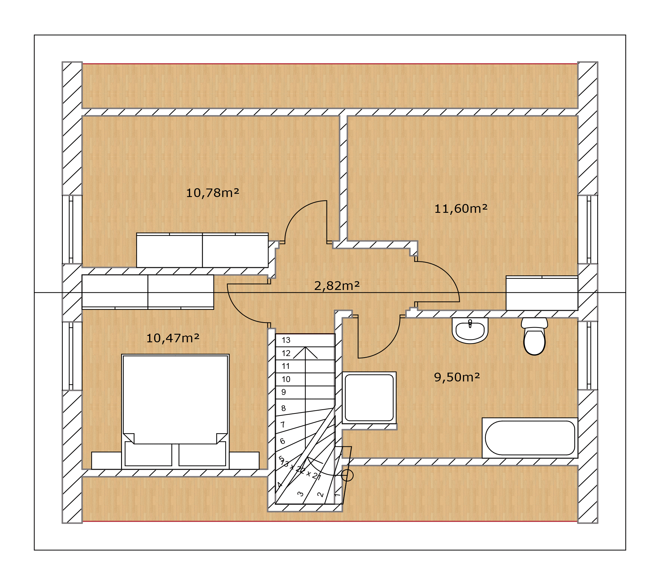
Obergeschoss

Das Obergeschoss der Krone 100 ist als ruhiger Rückzugsbereich konzipiert. Hier stehen drei Schlafzimmer zur Verfügung, die flexibel als Eltern-, Kinder- oder Gästezimmer genutzt werden können. Ein gut geschnittenes Badezimmer mit Dusche sorgt für Komfort und Funktionalität. Die Trennung von Wohn- und Schlafbereichen unterstützt eine klare Raumaufteilung und trägt zu einem angenehmen Wohnklima bei.

Als klassisches Schwedenhaus in Holzbauweise überzeugt die Krone 100 durch ein gesundes und natürliches Raumklima. Holz als nachhaltiger Baustoff reguliert auf natürliche Weise die Luftfeuchtigkeit und sorgt für eine warme, behagliche Atmosphäre. Gleichzeitig bietet die Bauweise eine gute Energieeffizienz, wodurch sich das Haus sowohl für die saisonale als auch für die ganzjährige Nutzung eignet.

Dank des durchdachten Konzepts ist das Ferienhaus Krone 100 vielseitig einsetzbar. Ob als gemütliches Ferienhaus in naturnaher Umgebung, als Wochenendhaus oder als langfristige Wohnlösung – dieses Haus passt sich unterschiedlichen Bedürfnissen an. Der Grundriss lässt Raum für individuelle Anpassungen, etwa durch Terrassen, Anbauten oder persönliche Gestaltungswünsche.

Mit der Krone 100 bietet Idealhus ein Holzhaus im skandinavischen Stil, das Funktionalität, Wohnkomfort und Nachhaltigkeit vereint. Es ist die ideale Wahl für alle, die ein hochwertiges Ferienhaus suchen, das sowohl durch seine Architektur als auch durch sein Wohngefühl überzeugt.

cookie