Ferienhaus Älmhult 60

Das Ferienhaus Älmhult 60 ist ein kompaktes und durchdacht geplantes Holzhaus mit einer Wohnfläche von 60 m², das sich ideal für Singles, Paare oder als gemütliches Ferienhaus eignet. Trotz seiner überschaubaren Größe bietet dieses Haus alles, was es für komfortables Wohnen oder erholsame Auszeiten braucht.

Jetzt Anfragen!
  • Offener Wohn- und Essbereich mit Küche
  • Bad
  • Ein Schlafzimmer
  • Technikraum
  • Wohnfläche 60 m²

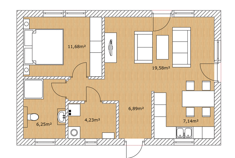
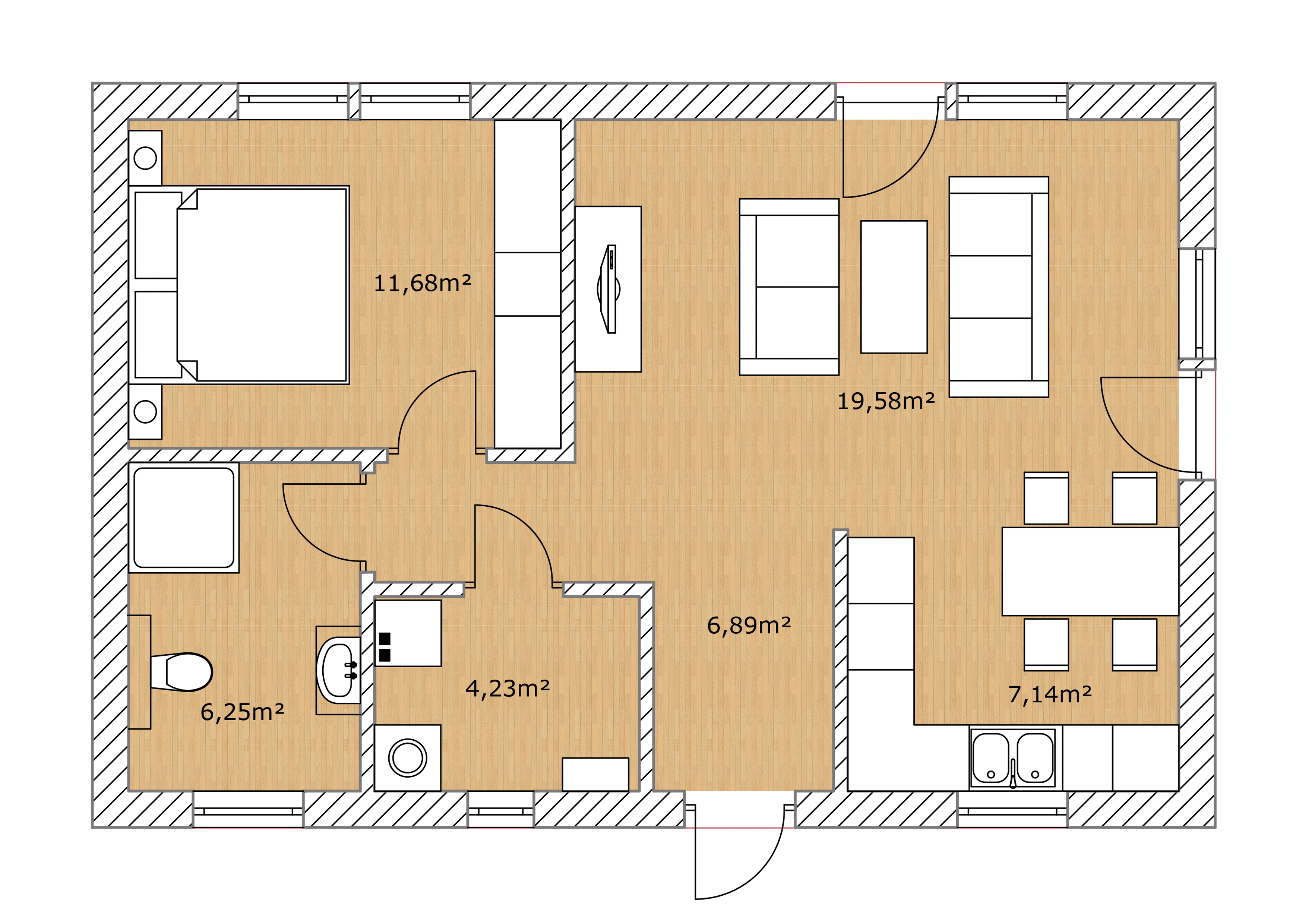
Erdgeschoss

Der offen gestaltete Wohn- und Essbereich bildet das Herzstück des Hauses und schafft durch seine klare Struktur ein angenehmes Raumgefühl. Große Fensterflächen lassen viel Tageslicht ins Innere und sorgen für eine helle, freundliche Atmosphäre, die zum Wohlfühlen einlädt. Die offene Gestaltung verbindet Wohnen, Essen und Kochen harmonisch miteinander und schafft einen Ort zum Entspannen und Abschalten.

Sonstiges

Das Älmhult 60 verfügt über ein Schlafzimmer, ein funktionales Badezimmer sowie einen separaten Technikraum, der zusätzlichen Stauraum und Platz für Haustechnik bietet. Die durchdachte Raumaufteilung sorgt dafür, dass jeder Quadratmeter sinnvoll genutzt wird.

Ob als dauerhaftes Wohnhaus oder als kleine Ferienoase – das Älmhult 60 bietet ausreichend Platz für individuelle Bedürfnisse und überzeugt durch seine helle, freundliche Gestaltung sowie seinen skandinavischen Wohncharakter.

cookie